









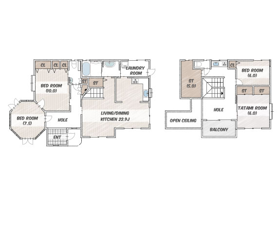
〇吹抜けは天井を高くし、空間に広がりをもたらしますので、狭さを感じさせず、開放的な空間になります。
〇洗面所はゲストが使用する時もある為、ランドリールームとして分けることで、プライバシーや快適さを保つことができます。
〇クローゼットや物入、納戸、といった収納スペースが豊富だと、物をきちんと分類・収納できるため、部屋がすっきりと片付きやすくなります。これにより、日常の掃除や片付けも効率的に行えます。
〇ホールがゆったり広めなので、まず第一にゆとりと開放感が得られます。狭い廊下だと圧迫感を感じやすいですが、広い廊下は家全体に明るさと広がりをもたらし、居心地の良さを高めます。
| 価格 | 2,480万円 |
|---|---|
| 所在地 | 堺市南区鉢ヶ峯寺 |
| 交通 | 南海泉北線/栂・美木多駅よりバス乗車/公園墓地北口バス停下車 徒歩約3分 |
| 土地面積 | 公簿|420.52㎡(約127.20坪) |
|---|---|
| 建物面積 | 164.97㎡(約49.90坪) |
| 区画数 | 1 |
| 用途地域 | 指定なし |
| 建ぺい率 | 60% |
| 容積率 | 200% |
| 土地権利 | 所有権 |
| 道路と敷地の関係 | '南西側 幅員約4.9m 公道に約13.0m接面 |
| 間取り | 4LDK+S |
|---|---|
| 建物構造 | 木造 |
| 建築年月 | 1998年3月 |
| 引渡し | 空家|相談 |
| 取引態様 | 代理 |
| 備考 | '*図面と現況が相違する場合は現況を優先させて頂きます |